


Mediante la licitación pública 06/2024, la Municipalidad de General La Madrid proyecta la contratación de la construcción de la primera etapa, del nuevo edificio de la Escuela de Educación Secundaria Técnica N° 1,


El presupuesto oficial para la obra es de $. 566.325.954,65 y el plazo de ejecución es de 180 días, pudiéndose retirar los pliegos en la Oficina de Compras del Municipio, en San Martin 565, hasta el día lunes 21 de octubre.
La apertura de las propuestas se llevará a cabo en el Palacio Municipal, el martes 22 de octubre, a las 11.00 horas.
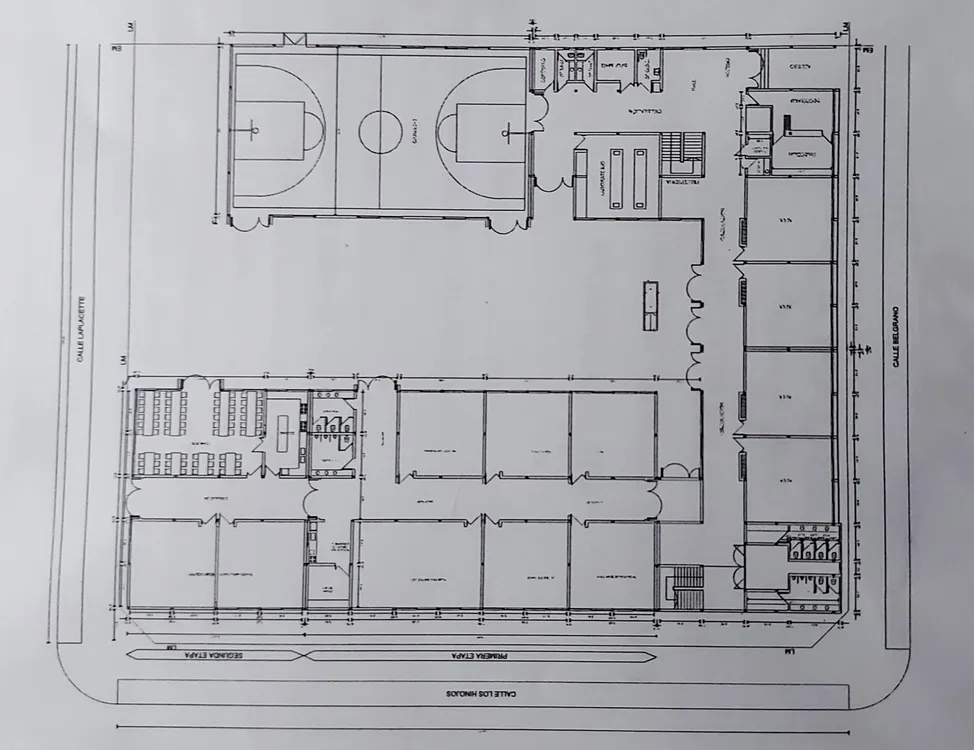
Ubicación del nuevo edificio
El terreno asignado para este nuevo edificio se encuentra emplazado en un predio que comparte con la Escuela Primaria N° 8, en calle Laplacette, entre Ruta Provincial 67 y calle Los Hinojos de General La Madrid, con una superficie de tres mil metros cuadrados (50x60 m.) en esquina.
Características del edificio
Según Rama de Educación Técnica, la construcción cuenta con:
Un Área Pedagógica: 8 aulas comunes, 7 talleres s/orientación (Taller de máquinas y herramientas, taller de carpintería y procesos de productos, taller lenguaje tecnológico, taller de oficina simulada, taller de gestión, taller de automatización y taller de electricidad básica) oficina técnica, sanitarios masculinos y femeninos.
Un Área de gestión y administración: Dirección, Secretaría, Preceptoría, Gabinete Pedagógico, Sala de profesores y Administración.
Un Área de Cocina y Comedor: Cocina, Comedor, Despensa.
Un Área de actividades complementarias: Biblioteca con opción de dividir con paneles para diferentes usos (sala de reunión/capacitación/y/o gabinete de informática, etc., según dispongan las autoridades del establecimiento), Laboratorio de física y química; y por último
Un Área recreativa, SUM/Gimnasio, sanitarios discapacitados, sala de máquinas, Centro de estudiantes, Fotocopiado y Buffet.
Siendo la superficie total de 2.923,76 m2 cubiertos.
El proyecto propone tres accesos, uno principal por calle Belgrano, otro secundario por calle Laplacette dando la posibilidad a la comunidad de hacer uso del SUM/Gimnasio para actividades culturales y7o sociales , eventualmente y un ingreso de servicio para materiales, insumos y vehicular.
Para la tecnología y materiales se ha tenido en cuenta el uso racional de los recursos utilizando técnicas constructivas tradicionales y materiales habituales en el mercado local.
La estructura será de hormigón armado a la vista, mampostería de ladrillos cerámicos revocados, carpintería en ventanas y puertas exteriores de chapa doblada con cerraduras antipánico e interiores placa de madera para pintar. Solados de mosaico granítico en los interiores pulido o granito compacto y lajas de cemento comprimido o alisado de cemento texturado sobre Contrapiso en los exteriores. Revestimientos cerámicos en grupos sanitarios, cubiertas de chapa galvanizada sobre estructura metálica, cielorrasos de vainilla de PVC, instalaciones completas, veredas exteriores y parquización.