


La Dra. María Josefina, Directora Ejecutiva del Hospital Interzonal General de Agudos “San Roque”, ubicado en la localidad de Manuel B. Gonnet y el Intendente Dr. Martin Randazzo suscribieron, en mayo de 2024, un convenio aprobado por el H. Concejo Deliberante de General La Madrid, que permite la realización de acciones de beneficios mutuos.


En el marco de dicho acuerdo, el Hospital Mariano Etchegaray de General La Madrid encomendó a la Residencia de Arquitectura para la Salud del HIGA San Roque de Gonnet, un proyecto de relevamiento, diagnóstico y remodelaciones, que busca brindar respuesta a las necesidades del efector.

Antecedentes
El edificio del Hospital de General La Madrid, fue proyectado a fines de la década de 1930 y su construcción dio comienzo en 1942, con largos periodos de interrupción de los trabajos.
Finalmente el edificio fue inaugurado el 19 de julio de 1956, con la presencia del Interventor Federal de la Provincia, Coronel Emilio A. Bonnecarrere y el titular del Municipio local, D. Néstor B. Lago.
El establecimiento inaugurado funcionaba en el ámbito del Ministerio de Salud bonaerense y en consecuencia el organismo provincial tenía a su cargo su mantenimiento.
En ese marco, el Hospital Regional de General La Madrid funcionó hasta que en 1977 fue transferido al Municipio.
A lo largo de muchos años se fueron introduciendo modificaciones en la construcción del mismo y con el avance de nuevas tecnologías se crearon nuevas dependencias.
En 1983 se convocó a un concurso de antecedentes para realizar un relevamiento del lugar y proyectar su adecuación a las necesidades del momento, debido a la incorporación de servicios que ampliaban la complejidad del nosocomio. Finalmente el proyecto si bien fue realizado no pudo ser ejecutado por cambios de conducción política y otros lineamientos para el sector.
Desde su traspaso al ámbito municipal, se han ido concretando numerosas modificaciones, algunas de carácter estructural, pero sin seguir un plan que permita concretar cambios sin tener que alterar lo que se había hecho con anterioridad.

Proyecto de refacción y ampliación del Hospital Mariano Etchegaray
Mediante el convenio oportunamente suscripto, se encomendó a la Residencia de Arquitectura para la Salud del HIGA San Roque de Gonnet, un proyecto de relevamiento, diagnóstico y remodelaciones, que busca brindar respuesta a las necesidades del efector.
El mismo se basa en la adecuación de áreas existentes como el diseño de nuevas, siempre a partir de un relevamiento y análisis situacional y normativo (provincial y nacional), para lo cual fue importante mantener la buena comunicación establecida y el trabajar de manera interdisciplinaria, con el equipo médico y técnico del hospital, como así también con la intendencia, con alcances claros y dentro de márgenes convenidos.

La etapa 1, consta de los siguientes ítems:
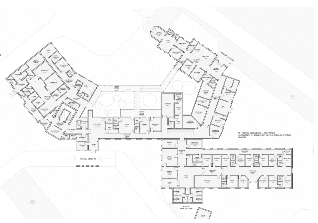
1. Implantación y Accesos (PDF)
2. Planta Baja Propuesta (PDF)
3. Planta 1er piso Propuesta (PDF)
4. Planta 2do piso Propuesta (PDF)
5. Planta Edificio Anexo
6. Perspectivas conjunto (PDF)
7. Perspectivas Hospital
8. Posible HDD Quirúrgico
En la etapa 2 se continuó con el desarrollo de las propuestas arquitectónicas para las principales áreas a trabajar, basado en las conclusiones obtenidas de la etapa precedente
Cabe destacar que los proyectos son preliminares, por lo que para que alcancen el grado de anteproyecto licitatorio, se deberá continuar y profundizar en la documentación.
Propuesta.
A partir del relevamiento del efector de salud y el diagnóstico realizado, se procede a la toma de partido. Esta serie de decisiones adoptadas y estrategias arquitectónicas, con perspectiva en salud, reflejan los objetivos que se busca alcanzar en base al ranking de prioridades establecido previamente, el mismo, a razón de dar respuesta a las mayores debilidades detectadas y a fortalecer los servicios de mayor envergadura, logrando potenciar la calidad de atención que brinda el establecimiento a su comunidad.
Así entonces, la documentación presentada procura ser un plan de intervención general de cara al futuro sobre cómo se proyecta del H.M.E. y al cual deberá ajustarse cualquier otra intervención de las partes.
La importancia de este documento radica en:
- Definición de acciones con alcances medibles.
- Fundamentación de intervenciones y estrategias adoptadas.
- Especificación de plazos, costos y etapabilidad analizables.
Marco Normativo:
- Programa Nacional de Garantía de Calidad en la Atención Médica (PNGCAM).
- Normas complementarias del PNGCAM.
- Resolución 4750/2021 del Ministerio de Salud - normas gba.
- Resolución 2519/2015 del Ministerio de Salud - normas gba.
Contenido del documento:
- Alcance de intervenciones
- Etapabilidad de intervenciones
- Especificaciones
- Conclusión
- Anexo
Intervenciones definidas:
1. Adecuación del Área Quirúrgica y Ampliación de Centro Obstétrico.
2. Reubicación de nueva Guardia: con atención en crisis de Salud Mental.
3. Consolidación del Área de Diagnóstico y Tratamiento.
4. Reestructuración de ingreso principal.
5. Adecuación de Esterilización.
6. Reubicación del Área Administrativa y Dirección.
7. Adecuación de Internación de UTI.
8. Reestructuración de Internación de Neonatología y Pediatría.
9. Puesta en valor de habitaciones de Internación de Salud Mental.
Fundamentación:
A. Alto: en base al gran impacto sobre Áreas críticas y de gran demanda por parte de la población de La Madrid y alrededores, a sí mismo requieren de una fuerte inversión y mano de obra calificada. En las acciones 5 y 6 la importancia radica en ser previas y necesarias para la ejecución de las acciones 1, 2 y 4. Todas estas intervenciones mejorarán la calidad de atención que el Hospital brinda a su comunidad, y el impacto se comprobará en el potencial aumento de producción.
B. Medio: significan una mejora espacial y funcional de las áreas cerradas de la Internación del Hospital, áreas sensibles que pueden optimizarse con una inversión media a baja según las modificaciones específicas que se deban realizar en las instalaciones y que generarán un salto de calidad para los usuarios.
C. Bajo: pequeñas acciones que mejorarán las condiciones existentes, es decir, no poseen un impacto en la producción del Hospital pero sí en la aproximación al cumplimiento de normativas vigentes referidas a los derechos de los pacientes. La inversión es mínima y la mano de obra no requiere ser especializada.
Del análisis del proyecto surge que hay acciones a implementar ligadas a otras, por lo que se requerirán vínculos secuenciales y otras acciones independientes para las que no será necesario intervenciones previas ni orden cronológico.

Conclusión:
Este “Plan de Intervenciones Generales” es un reflejo de la detección de debilidades por parte de las autoridades del H.M.E. y de la Residencia de Arquitectura para la Salud de la PBA, y de objetivos planteados que buscan fortalecer la infraestructura del efector y su rol dentro de la red de salud a la que pertenece. El espíritu de la toma de decisiones en todo momento fue respetar la fachada histórica del Hospital y su superficie construida actual, buscando transformar los espacios existentes en lugar de caer en la necesidad de obra nueva, lo que por un lado permite optimizar recursos, reducir costos, y es una estrategia consciente del entorno donde se implanta.
Tanto la definición de las propuestas de intervención como especificaciones económicas y temporales corresponden a la presente instancia de proyecto, es decir, son totalizadoras y globales. Queda así pendiente, en caso de decidir proseguir con estas líneas de acción planteadas, profundizar en la resolución de las partes: los detalles y las especificaciones técnico-constructivas, plazos y costos de cada intervención (todas o algunas) solicitadas por parte de las autoridades de La Madrid en una siguiente etapa a definir.

La concreción del proyecto
La Municipalidad de General La Madrid dispone ahora de un proyecto integral, adecuado a las necesidades inmediatas y a las que se produzcan con la evolución en el tiempo, que permitirá, en sus respectivas etapas, alcanzar logros previstos desde su inicio, siguiendo un orden lógico y necesario para evitar los contratiempos e inconvenientes que han ido surgiendo con otras intervenciones.
Se trata, entonces, un proyecto que deberá ser evaluado y que tendrá que ajustarse a las etapas que se deseen establecer y las disponibilidades de fondos necesarios para la obra.
Pero lo que es importante y digno de destacar que el mismo ha sido elaborado por profesionales cuya actividad esta dirigida, específicamente, a la arquitectura hospitalaria.








